Startsida

Fotogalleri

BRF Projekt

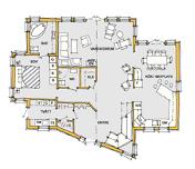
Textruta: Onsalavillan Funkisvilla

På uppdrag av Onsalavillan utformades ett modernt typhus  med olika varianter i planlösningen.

BRF Västra Hamnskär